Wohngebäude in Amsterdam-IJburg von Orange Architects
Bild 32/37
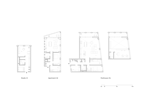
Apartment-Typen
Bild: Orange Architects