Die Meldung in Bildern
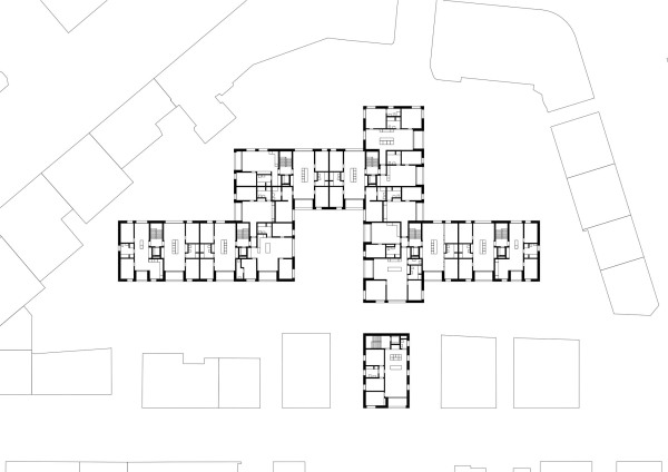
Tetris im Blockrand
Wohnensemble in Zürich von Max Dudler Architekten
Bild 12/17
2. Obergeschoss
Bild: Max Dudler