Die Meldung in Bildern
Metallische Mansarden
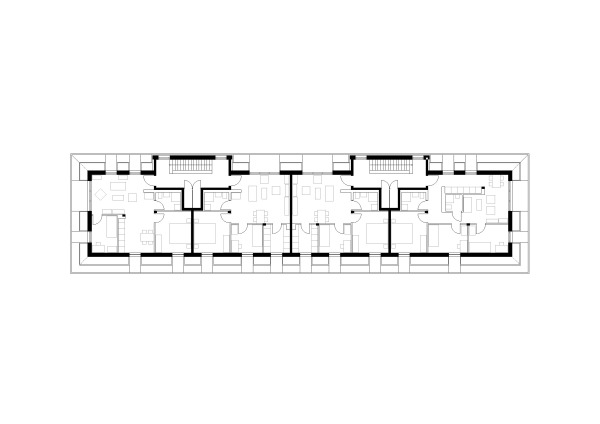
Wohnbauten in Berlin von roedig.schop architekten
Bild 18/23
Dachgeschoss Haus 3
Bild: roedig.schop