Die Meldung in Bildern
Co-Living auf dem Bauernhof
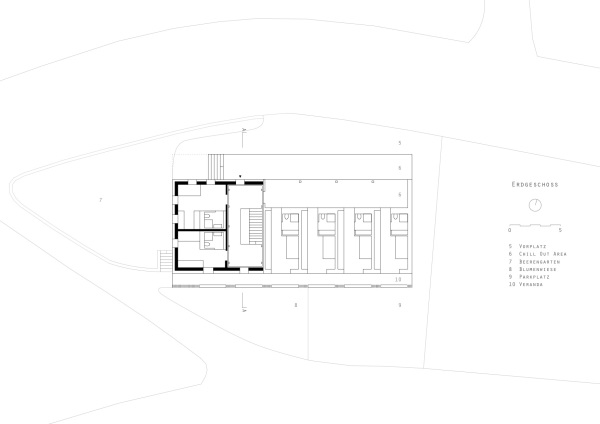
Wohnbau in Dornbirn von Ludescher + Lutz
Bild 17/21
Grundriss EG
Bild: Ludescher+Lutz Architekten