Wohnanlage von archis am Europa-Park in Rust
Bild 18/24
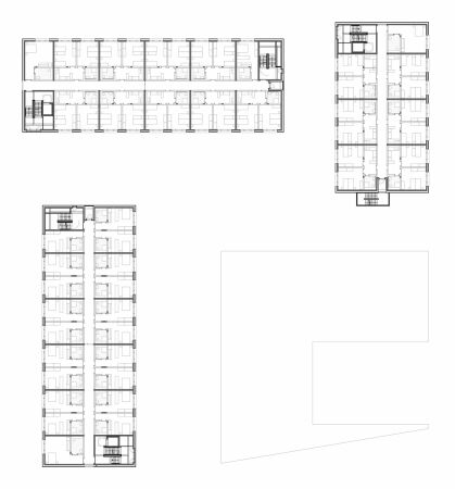
Grundriss 1. und 2. Obergeschoss
Bild: archis Architekten + Ingenieure