Wohn- und Praxisensemble in Teufenbach von Scheiberlammer Architekten und Lendarchitektur
Bild 16/16
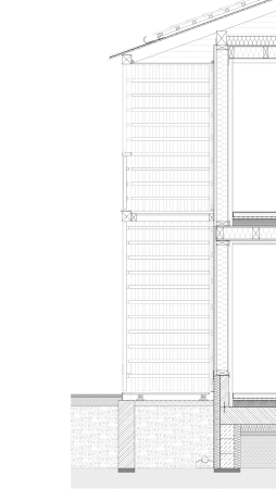
Fassadenschnitt
Bild: Scheiberlammer und Lendarchitektur