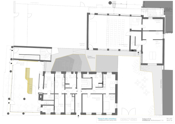
Wohn- und Kulturzentrum für Geflüchtete in München
Bild 28/35
Erdgeschoss der gesamten Anlage
Bild: hirner & riehl architekten