Die Meldung in Bildern
Hinter Pariser Vorhängen
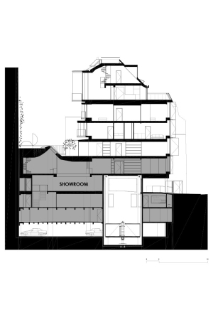
Wohn- und Geschäftshaus von Moussafir Architectes
Bild 32/46
Schnitt Showroom