Bild 13/16
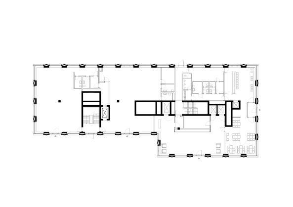
Grundriss Erdgeschoss. Die Wohn- und Bürogeschosse werden durch ein gemeinsames Foyer mit jeweils separatem Lift und gemeinsamen Treppenhäusern erschlossen.
Bild: Hild und K Architekten
Bild 13/16
Grundriss Erdgeschoss. Die Wohn- und Bürogeschosse werden durch ein gemeinsames Foyer mit jeweils separatem Lift und gemeinsamen Treppenhäusern erschlossen.
Bild: Hild und K Architekten