Wohn- und Geschäftshaus von Dolmus Architekten in Sempach
Bild 11/14
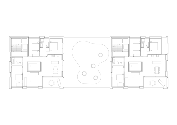
Grundriss OG - Wohnen
Bild: Dolmus Architekten