Die Meldung in Bildern
Kybernetische Fassade mit Goldakzenten
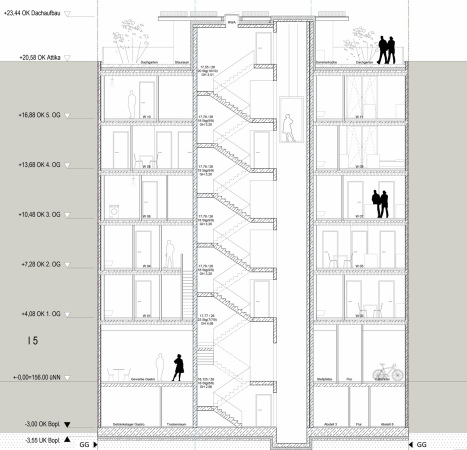
Wohn- und Geschäftshaus in Heilbronn von motorlab
Bild 21/25
Bild: Motorlab