Die Meldung in Bildern
Hoffentlich kein Hopfen
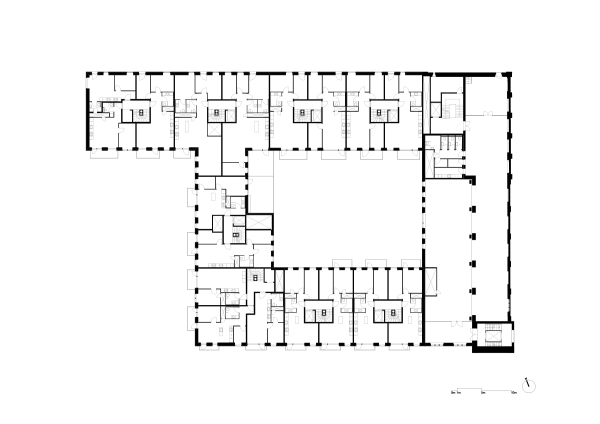
Wohn- und Bürohaus von Adept in Kopenhagen
Bild 17/25
OG1
Bild: ADEPT