Wohn- und Bürohaus in Mexiko-Stadt von Archetonic
Bild 21/29
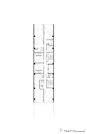
Grundriss 1. Obergeschoss
Bild: Archetonic