Die Meldung in Bildern
Glas im Schnee
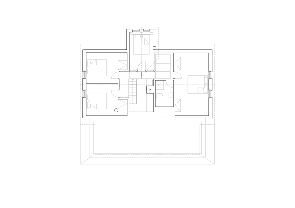
Wochenendhaus von Mjölk architekti in Polubny
Bild 35/41
Erste Obergeschoss
Bild: Mjölk architekti