Wochenendhaus von Atelier Schwimmer bei Montreal
Bild 16/18
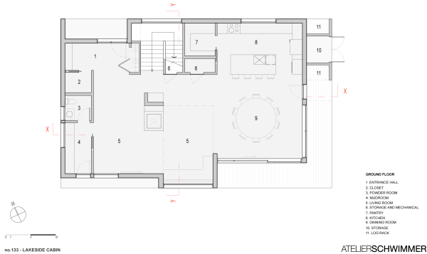
Grundriss Erdgeschoss
Bild: Atelier Schwimmer