Ferienhaus, Wochenendhaus, Sunder Plassmann Architekten & Stadtplaner, 2017, Starnberger See

Bild 20/24

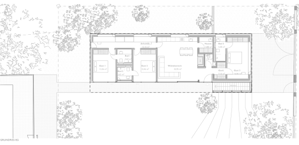
Grundriss Erdgeschoss

Bild: Sunder Plassmann Architekten & Stadtplaner