Wettbewerbsergebniss, Wettbewerb, competition, Walter Gropius, Bauhaus-Archiv, Berlin, international, 100-jähriges Jubiläum, Bauhaus 2019, 2019, Volker Staab, Staab Architekten, Senatsverwaltung für Stadtentwicklung und Umwelt, nichtoffener Wettbewerb „Bauhaus-Archiv / Museum für Gestaltung, Berlin“, AFF, Bruno Fioretti Marquez Architekten, ARGE sinning architekten, stinner architekten GmbH, dasch zürn architekten, EM2N, F29 Architekten, Konermann Siegmund Architekten, PPAG architects, Juryentscheid, Tim Renner, Monika Grütters, Hilde Léon, Regula Lüscher, Annemarie Jaeggi, Bauhaus-Archiv Berlin, BauNetz, Baunetz-Meldung, News, Architektennews, Erweiterung des Bauhaus-Archiv, Museum, Museum des 21. Jahrhunderts, My Bauhaus is better than yours, Weimar, Dessau, Bauhaus Wettbewerbe

Bild 24/55

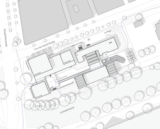
3. Preis: ARGE sinning architekten, stinner architekten GmbH, Darmstadt, Verfasser: Norbert Sinning, Franz Stinner

Bild: ARGE sinning architekten, stinner architekten GmbH