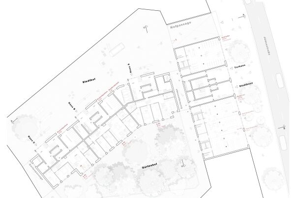
Los 2, ein 1. Preis: blrm Architekt*innen (Hamburg), Grundriss Erdgeschoss

Bild 36/60

Los 2, ein 1. Preis: blrm Architekt*innen (Hamburg), Grundriss Erdgeschoss

Bild: blrm Architekt*innen / SenStadt