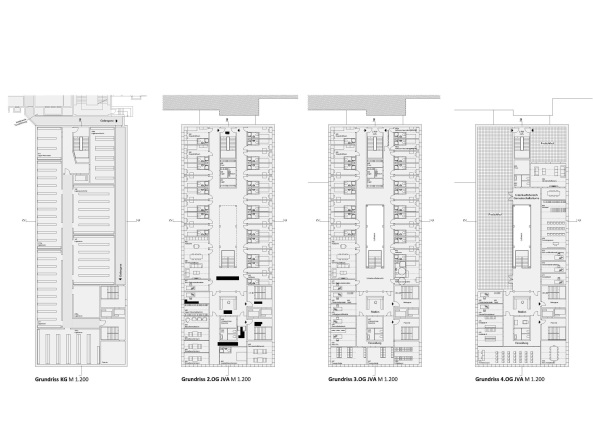
1. Preis: léonwohlhage (Berlin), Grundrisse Keller sowie 2. und 3. Obergeschosse

Bild 10/50

1. Preis: léonwohlhage (Berlin), Grundrisse Keller sowie 2. und 3. Obergeschosse

Bild: léonwohlhage