Bild 37/92
2. Preis: Pesch Partner Architekten Stadtplaner (Stuttgart) in ARGE mit R+T Verkehrsplanung (Darmstadt)
Bild: Pesch Partner Architekten Stadtplaner / R+T Verkehrsplanung
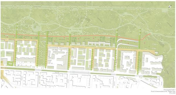
Bild 37/92
2. Preis: Pesch Partner Architekten Stadtplaner (Stuttgart) in ARGE mit R+T Verkehrsplanung (Darmstadt)
Bild: Pesch Partner Architekten Stadtplaner / R+T Verkehrsplanung