Wettbewerb zu Umbau und Erweiterung in Breslau entschieden
Bild 10/40
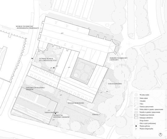
1. Preis: TŁO – Michał Sikorski architekt (Warschau)
Bild: TŁO – Michał Sikorski architekt