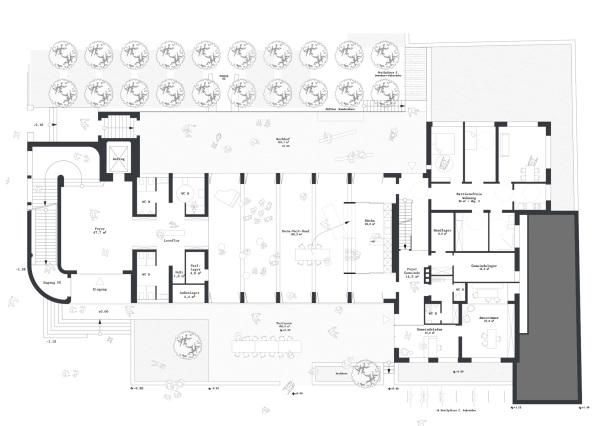
2. Preis: prinzmetal (Stuttgart/Köln); Grundriss Erdgeschoss

Bild 31/56

2. Preis: prinzmetal (Stuttgart/Köln); Grundriss Erdgeschoss

Bild: prinzmetal