Bild 16/31
ein 3. Preis: Grundriss 1. Obergeschoss, Baufeld C1
Bild: Nickl & Partner Architekten & Planungsgruppe VA & B+G Ingenieure Bollinger und Grohmann
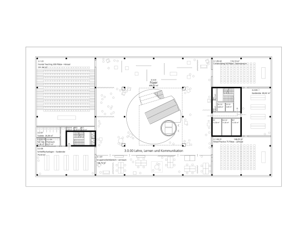
Bild 16/31
ein 3. Preis: Grundriss 1. Obergeschoss, Baufeld C1
Bild: Nickl & Partner Architekten & Planungsgruppe VA & B+G Ingenieure Bollinger und Grohmann