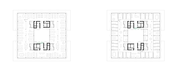
2. Preis Hochbau: pool Architekten, Grundrisse OG

Bild 20/46

2. Preis Hochbau: pool Architekten, Grundrisse OG

Bild: pool Architekten