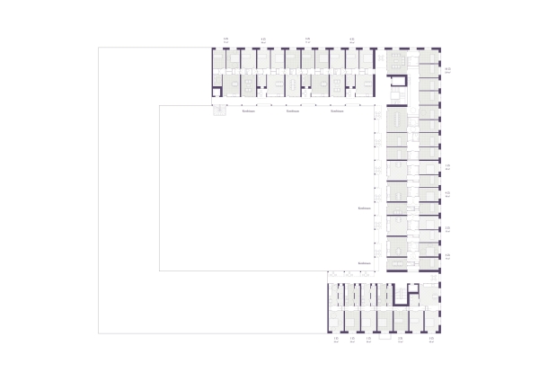
Bild 11/33
1. Preis: ARGE Menu surprise + wurzelsieben mit Landschaftsarchitekt*innen OTTL.LA
Bild: ARGE Menu surprise + wurzelsieben mit Landschaftsarchitekt*innen OTTL.LA
Bild 11/33
1. Preis: ARGE Menu surprise + wurzelsieben mit Landschaftsarchitekt*innen OTTL.LA
Bild: ARGE Menu surprise + wurzelsieben mit Landschaftsarchitekt*innen OTTL.LA