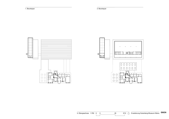
Liebfrauenstraße 5, Deutschland, Germany, Neubau, Museum, Mainz, competition, Museum, Erweiterung, Umbau, Modernisierung, LRO, DFZ Architekten, Christoph Mäckler, Lederer Ragnarsdottir, Oei, 2016, 2015, Offener Wettbewerb, Realisierungswettbewerb, Gewinner, 1. Preis, first prize, 2. Preis. 3. Preis, Anerkennung, EM2N,

Bild 49/51

Anerkennung: EM2N

Bild: EM2N