Liebfrauenstraße 5, Deutschland, Germany, Neubau, Museum, Mainz, competition, Museum, Erweiterung, Umbau, Modernisierung, LRO, DFZ Architekten, Christoph Mäckler, Lederer Ragnarsdottir, Oei, 2016, 2015, Offener Wettbewerb, Realisierungswettbewerb, Gewinner, 1. Preis, first prize, 2. Preis. 3. Preis, Anerkennung, EM2N,

Bild 19/51

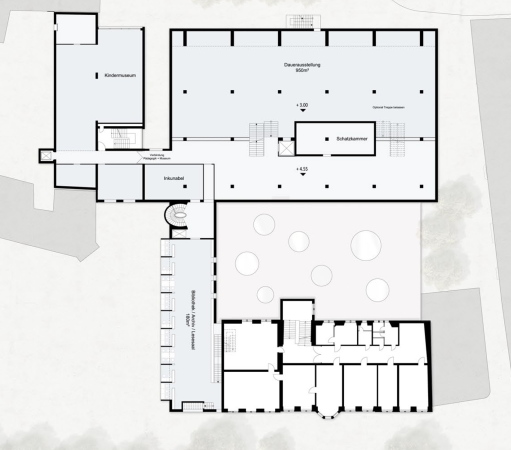
2. Preis: Christoph Mäckler Architekten

Bild: Christoph Mäckler Architekten