Bild 32/60
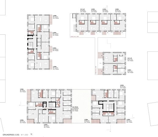
3. Preis: UTA Architekten und Stadtplaner (Stuttgart) mit Hannes Hörr Landschaftsarchitektur (Stuttgart); Grundriss Regelgeschoss Vertiefungsbereich 1
Bild: UTA Architekten
Bild 32/60
3. Preis: UTA Architekten und Stadtplaner (Stuttgart) mit Hannes Hörr Landschaftsarchitektur (Stuttgart); Grundriss Regelgeschoss Vertiefungsbereich 1
Bild: UTA Architekten