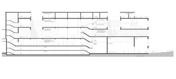
Bayern, Kulmbach, Alte Spinnerei, Wettbewerb, 2018, Umnutzung, Behörde,

Bild 53/65

Anerkennung: Staab Architekten

Bild: siehe Bildunterschrift