Bild 35/55
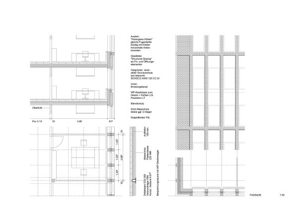
3. Preis: ARGE von Atelier Britz und Haupt (Hamburg) mit WPW Ingenieure (Saarbrücken), Fassadenschnitt
Bild: ARGE von Atelier Britz und Haupt
Bild 35/55
3. Preis: ARGE von Atelier Britz und Haupt (Hamburg) mit WPW Ingenieure (Saarbrücken), Fassadenschnitt
Bild: ARGE von Atelier Britz und Haupt