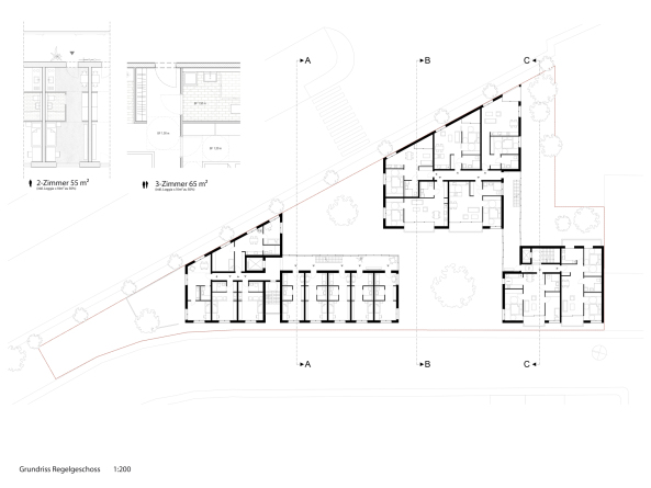
Wettbewerb in Dossenheim entschieden
Bild 16/34
2. Preis: motorlab Architekten
Bild: motorlab Architekten