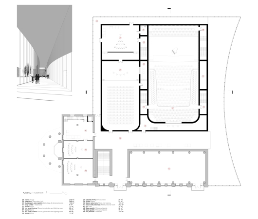
2. Preis: Cataraga Architects Grundriss 1. Obergeschoss und Visualisierung Detail

Bild 25/47

2. Preis: Cataraga Architects Grundriss 1. Obergeschoss und Visualisierung Detail

Bild: Cataraga Architects