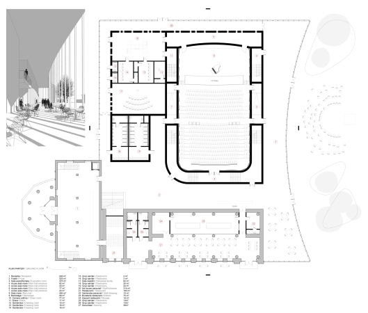
2. Preis: Cataraga Architects Grundriss Erdgeschoss und Visualisierung Detail

Bild 23/47

2. Preis: Cataraga Architects Grundriss Erdgeschoss und Visualisierung Detail

Bild: Cataraga Architects