Bild 36/52
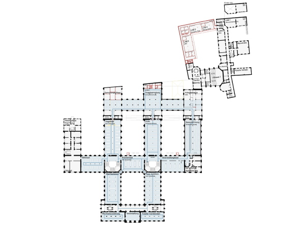
3. Preis: allmannwappner (München) mit Rabe landschaften (Hamburg). Grundriss 1. Obergeschoss
Bild: allmannwappner (München) mit Rabe landschaften (Hamburg)
Bild 36/52
3. Preis: allmannwappner (München) mit Rabe landschaften (Hamburg). Grundriss 1. Obergeschoss
Bild: allmannwappner (München) mit Rabe landschaften (Hamburg)