Bild 11/31
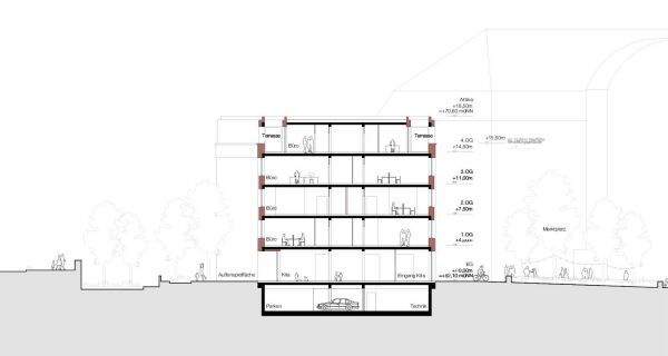
1. Preis: Max Dudler (Berlin) und Seeberger Walenta Architekten (Hannover), Schnitt Bürobau
Bild: Max Dudler und Seeberger Walenta Architekten
Bild 11/31
1. Preis: Max Dudler (Berlin) und Seeberger Walenta Architekten (Hannover), Schnitt Bürobau
Bild: Max Dudler und Seeberger Walenta Architekten