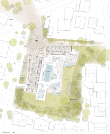
Wettbewerb für die Neue Therme Oberstdorf entschieden
Bild 24/39
2. Preis: Behnisch Architekten (München)
Bild: Behnisch Architekten