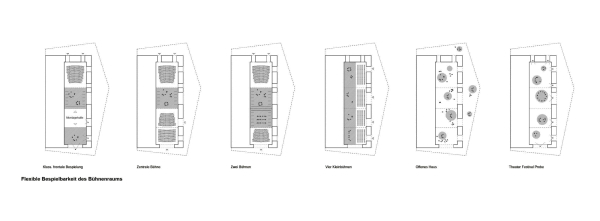
3. Preis: Staab Architekten (Berlin) mit Atelier Loidl Landschaftsarchitekten (Berlin)

Bild 39/67

3. Preis: Staab Architekten (Berlin) mit Atelier Loidl Landschaftsarchitekten (Berlin)

Bild: Staab Architekten