Wettbewerb für das Gutenberg-Museum in Mainz entschieden
Bild 32/59
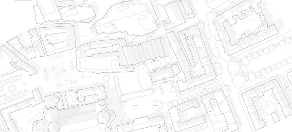
3. Preis: wulf architekten (Stuttgart); Lageplan
Bild: wulf architekten