Wettbewerb für das Gutenberg-Museum in Mainz entschieden
Bild 30/59
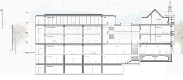
2. Preis: Riehle Koeth (Stuttgart); Schnitt
Bild: Riehle Koeth