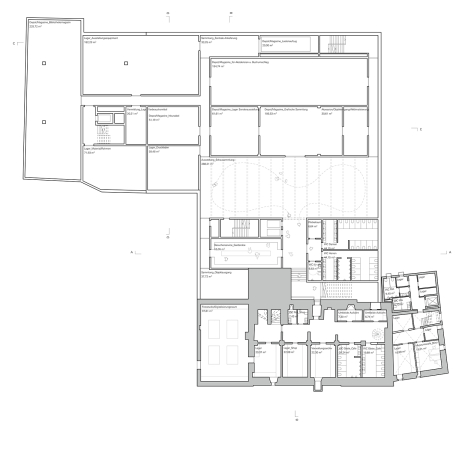
Wettbewerb für das Gutenberg-Museum in Mainz entschieden
Bild 26/59
2. Preis: Riehle Koeth (Stuttgart); Grundriss 4.OG
Bild: Riehle Koeth