Bild 14/24
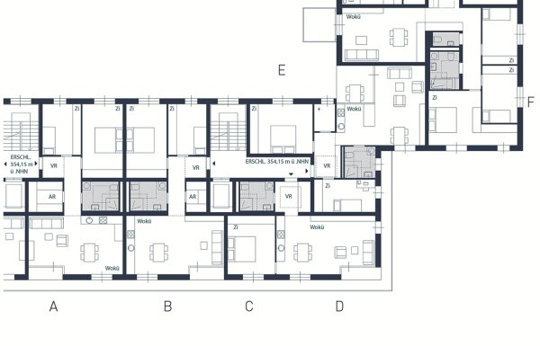
2. Preis: Studio Vlay Streeruwitz ZT (Wien) mit Carla Lo Landschaftsarchitektur (Wien)
Bild: Studio Vlay Streeruwitz
Bild 14/24
2. Preis: Studio Vlay Streeruwitz ZT (Wien) mit Carla Lo Landschaftsarchitektur (Wien)
Bild: Studio Vlay Streeruwitz