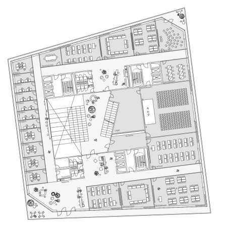
1. Preis: C.F. Møller (Berlin), Grundriss 1. Obergeschoss

Bild 14/55

1. Preis: C.F. Møller (Berlin), Grundriss 1. Obergeschoss

Bild: C.F. Møller