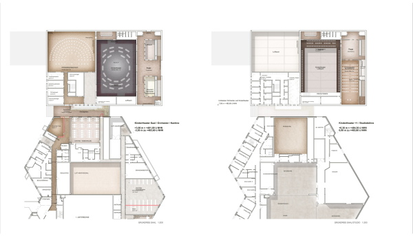
Wettbewerb für Kinder- und Jugendtheater entschieden
Bild 10/49
1. Preis: Max Dudler
Bild: Max Dudler