Wettbewerb für Erweiterung der Kunsthochschule Braunschweig entschieden
Bild 7/25
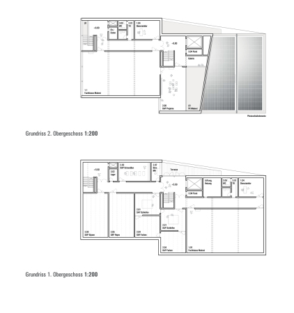
1. Preis: eisfeld engel Architekten (Hamburg), Grundrisse OGs
Bild: eisfeld engel Architekten