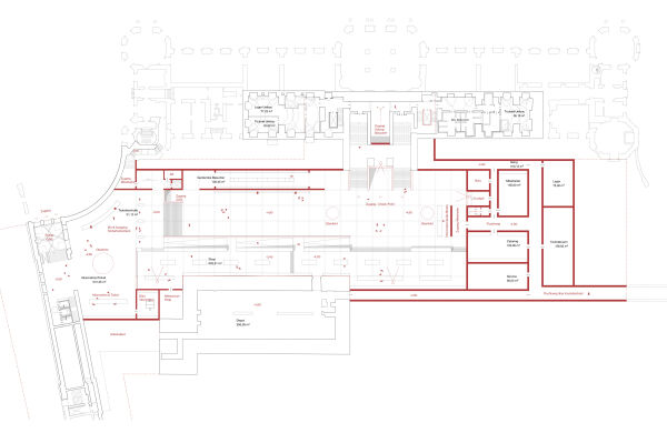
1. Platz: epps Ploder Simon (Graz), Grundriss 1. Untergeschoss

Bild 8/27

1. Platz: epps Ploder Simon (Graz), Grundriss 1. Untergeschoss

Bild: epps Ploder Simon