Architektur, Architecture, baunetz, meldung, news, nachricht, wettbewerb, competition,wettbewerbsergebnis, result, architekturschule, school of architecture, dänmark, danien, aarhus, new aarch, Vargo Nielsen Palle, Brian Vargo, Jonas Snedevind Nielsen, Mathias Palle, ADEPT, Atelier Lorentzen Langkilde, BIG, Bjarke Ingels, Erik Giudice Architecture, Lacaton & Vassal, BESSARDs' Studio, Siegesentwurf, Gewinnerprojekt, flexible Structure, structure, flexibility, fabric character, kulturelles Zentrum, Vision, Torben Nielsen

Bild 44/58

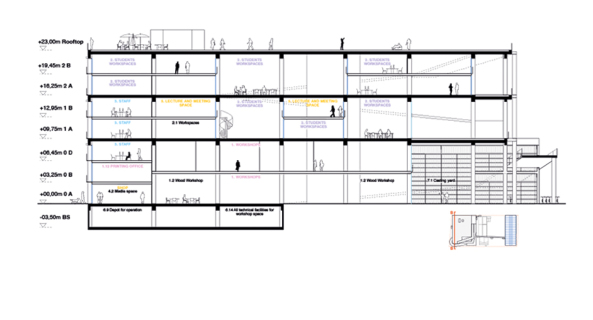
Lacaton + Vassal Architects und Bessard’s Studio

Bild: Lacaton + Vassal Architects und Bessard’s Studio