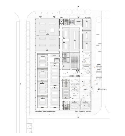
Wettbewerb, Garching, Gewinner, 1. Preis, HENN, 2016, Technik, Universität, TU München, Hochschule, Forschung, Planungswettbewerb, Neubau der Fakultät für Elektrotechnik und Informationstechnik, Caramel, Volker Staab, doranth post architekten, technology, Germany, Deutschland, competition, Ackermann + Raff, CODE UNIQUE Architekten,  harris + kurrle architekten

Bild 15/46

1. Preis: HENN

Bild: HENN