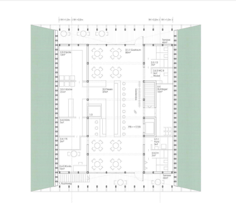
1. Preis: Steimle Architekten (Stuttgart) Strandhalle OG

Bild 8/31

1. Preis: Steimle Architekten (Stuttgart) Strandhalle OG

Bild: Steimle Architekten