Baunetz, Meldung, Architektur, architecture, 2017, Berlin, Deutschland, Germany, TU Berlin, Technische Universität, Planung, planning, Bahnhof Zoo, City West, Wettbewerb, Ergebnisse, Wettbewerbsergebnisse, competition, results, Gewinn, winner, CODE UNIQUE ARCHITEKTEN, Till Rehwaldt, Heinle, Wischer und Partner, Stefan Bernard, wulf architekten, Koeber, Bez+Koch, ST raum a., h4a, Gessert + Randecker, Glück, BE Berlin, LOCODROM, Landschaftsarchitekten, Max Dudler, TDB, Büro am Lützowplatz, David Chipperfield, Dörte Gatermann, Volker Staab, Dietmar Feichtinger, Johannes Kister, Henrike Wehberg-Krafft, Interdisziplinäre Zentrum für Modellierung und Simulation, IMoS, Institut für Mathematik, Neubau, offices, research, Forschung, Bildung, Uni, Lehre, Campus Ost, yellow z urbanism architecture, bgmr, nichtoffener Realisierungswettbewerb, Ausstellung, Regula Lüscher, Christian Thomsen, Vergabeverfahren

Bild 47/68

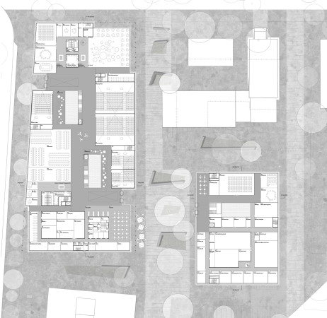
Anerkennung: h4a Gessert + Randecker, Stuttgart mit Glück Landschaftsarchitektur, Stuttgart, Grundriss EG

Bild: siehe Bildunterschrift