Bild 14/56
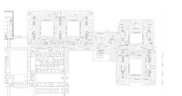
1. Preis: Arge HENN (München, Berlin, Peking) und C.F. Møller (Aarhus, Berlin) mit Sinai Landschaftsarchitekten (Berlin), Grundriss Erdgeschoss
Bild: Arge HENN und C.F. Møller
Bild 14/56
1. Preis: Arge HENN (München, Berlin, Peking) und C.F. Møller (Aarhus, Berlin) mit Sinai Landschaftsarchitekten (Berlin), Grundriss Erdgeschoss
Bild: Arge HENN und C.F. Møller